Julianaweg 283 - PEEK&POMPE Makelaars
Skip to main content

Utrecht

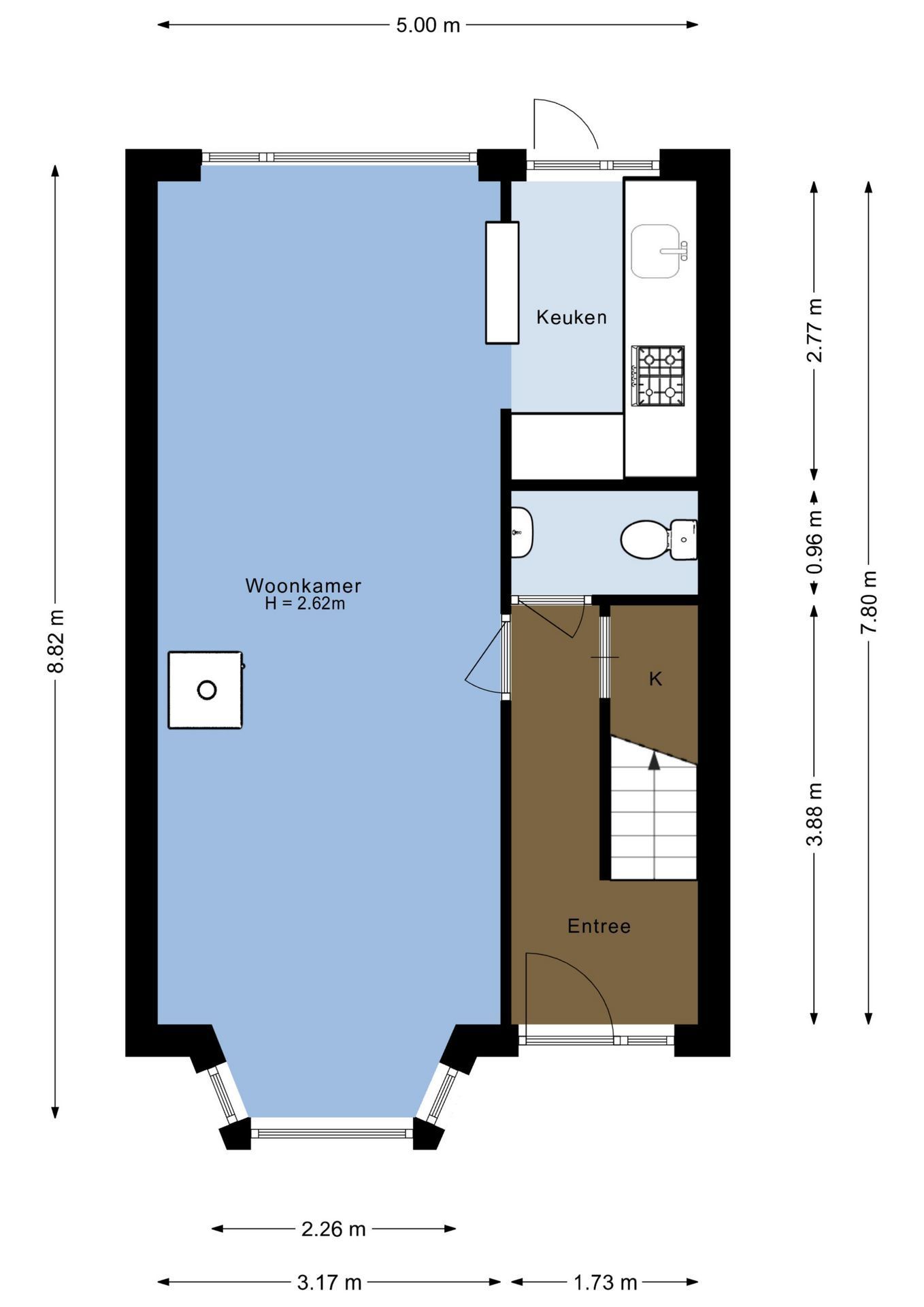
Julianaweg 283

€ 550.000 k.k.
4 rooms
91 m² surface
F energylabel
Julianaweg 283 Photo

Got excited?

Then quickly make an appointment for a no-obligation viewing of

Julianaweg 283

Bezichtiging plannen bij Julianaweg 283