Utrecht
Hulststraat 11
Sold
€ 529.000 Kosten koper
3 bedrooms
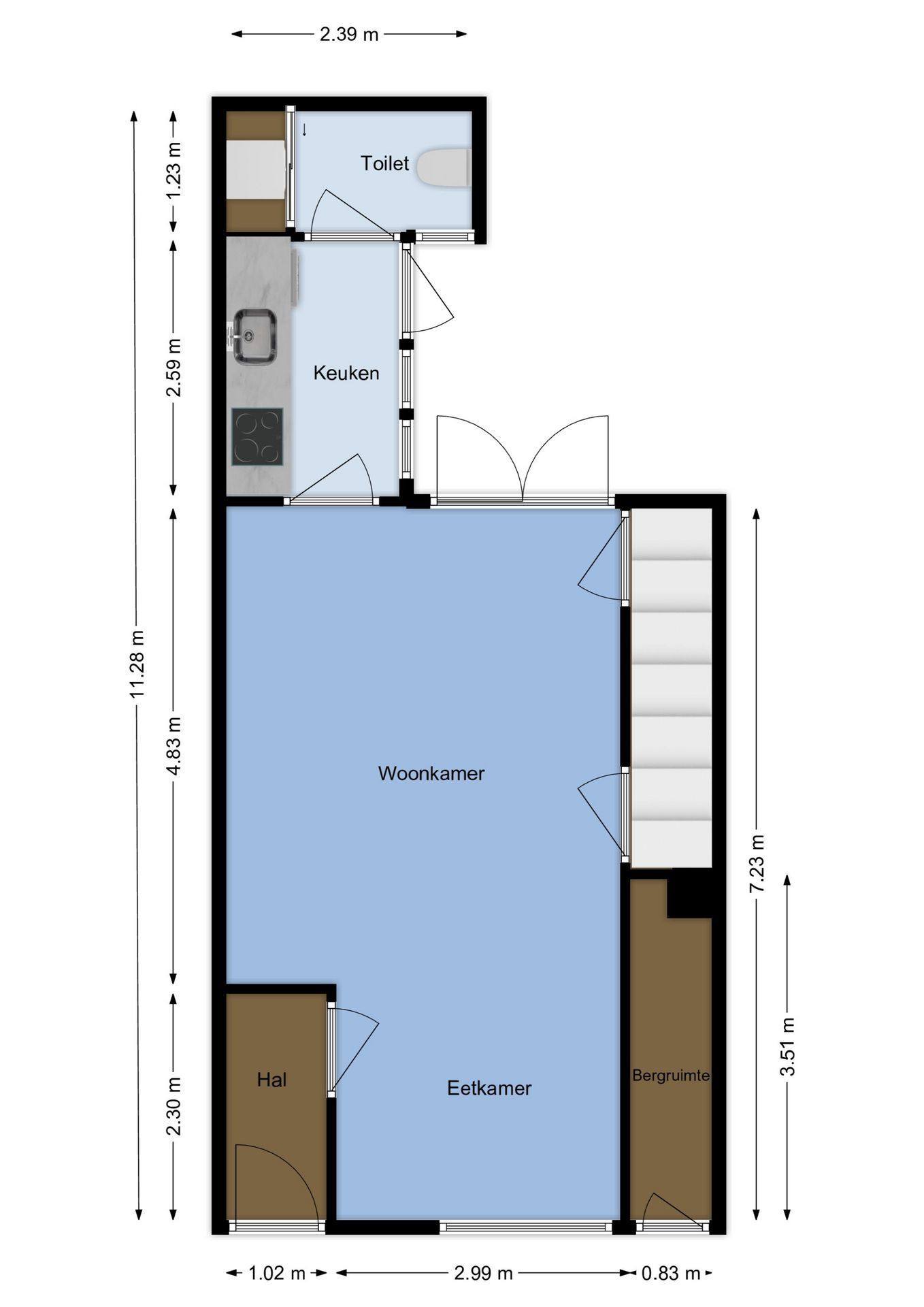
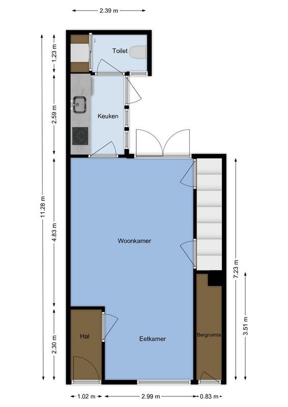
79 m² surface
D energylabel
Got excited?
Then quickly make an appointment for a no-obligation viewing of
Hulststraat 11Utrecht
Then quickly make an appointment for a no-obligation viewing of
Hulststraat 11