Waalstraat 71 - PEEK&POMPE Makelaars
Direct naar inhoud

Utrecht

Waalstraat 71

€ 525.000 k.k.
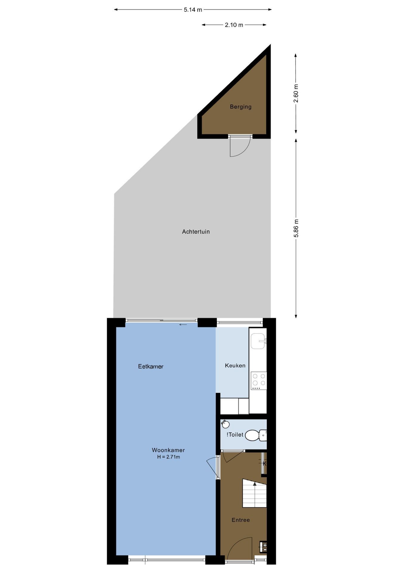
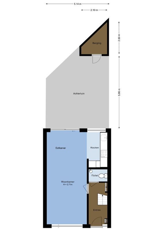
5 kamers
85 m² oppervlakte
C energielabel
Waalstraat 71 Photo

Enthousiast geworden?

Maak dan snel een afspraak voor een vrijblijvende bezichtiging van

Waalstraat 71

Bezichtiging plannen bij Waalstraat 71