Narcisstraat 37 - PEEK&POMPE Makelaars
Direct naar inhoud

Utrecht

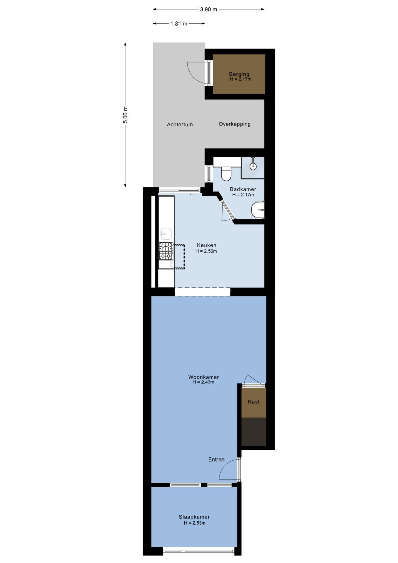
Narcisstraat 37

€ 335.000 k.k.
2 kamers
46 m² oppervlakte
C energielabel
Narcisstraat 37 Photo

Enthousiast geworden?

Maak dan snel een afspraak voor een vrijblijvende bezichtiging van

Narcisstraat 37

Bezichtiging plannen bij Narcisstraat 37