Croeselaan 257-BS - PEEK&POMPE Makelaars
Direct naar inhoud

Utrecht

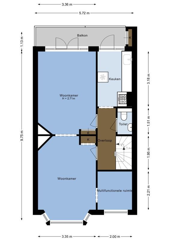
Croeselaan 257-BS

€ 550.000 k.k.
5 kamers
101 m² oppervlakte
C energielabel
Croeselaan 257-BS Photo

Enthousiast geworden?

Maak dan snel een afspraak voor een vrijblijvende bezichtiging van

Croeselaan 257-BS

Bezichtiging plannen bij Croeselaan 257-BS