Bolksbeekstraat 66 - PEEK&POMPE Makelaars
Direct naar inhoud

Utrecht

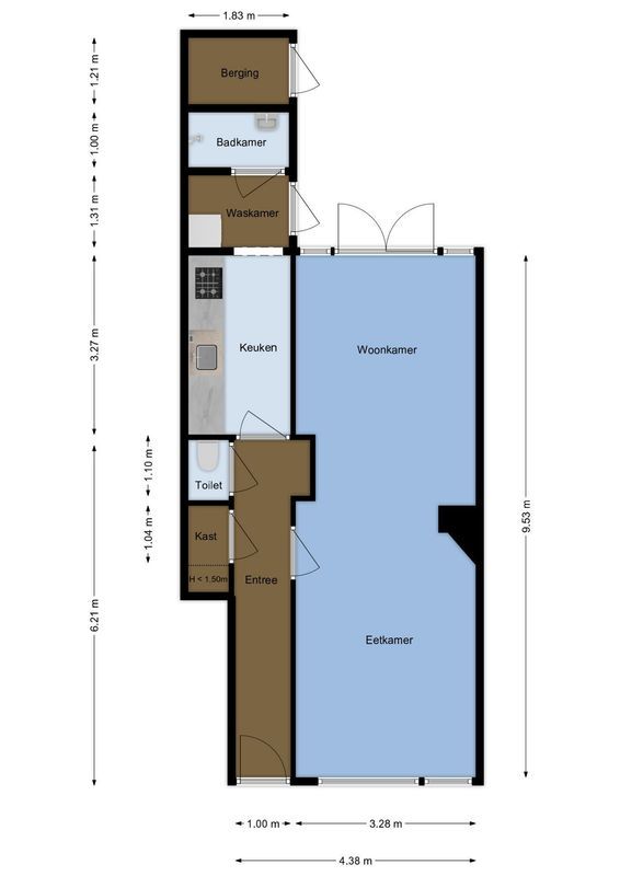
Bolksbeekstraat 66

€ 365.000 k.k.
2 kamers
65 m² oppervlakte
C energielabel
Bolksbeekstraat 66 Photo

Enthousiast geworden?

Maak dan snel een afspraak voor een vrijblijvende bezichtiging van

Bolksbeekstraat 66

Bezichtiging plannen bij Bolksbeekstraat 66