Utrecht
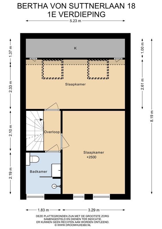
Bertha von Suttnerlaan 18
Aangekocht
€ 550.000 Kosten koper
103 m² oppervlakte
Enthousiast geworden?
Maak dan snel een afspraak voor een vrijblijvende bezichtiging van
Bertha von Suttnerlaan 18Utrecht
Maak dan snel een afspraak voor een vrijblijvende bezichtiging van
Bertha von Suttnerlaan 18